Mockauer Straίe 56, 58 in Leipzig Mockau Sόd
Standort
Lage des Flurstόcks
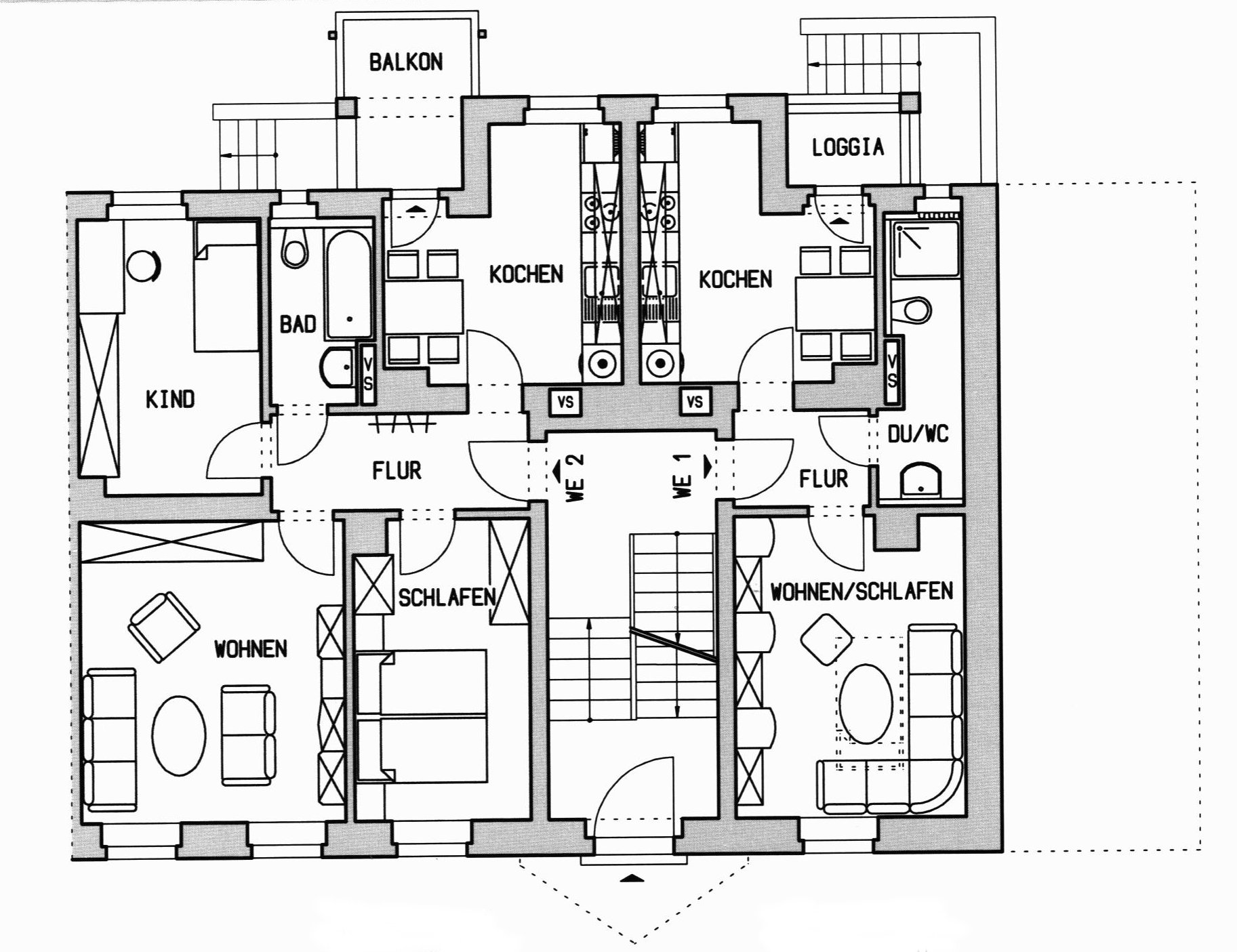
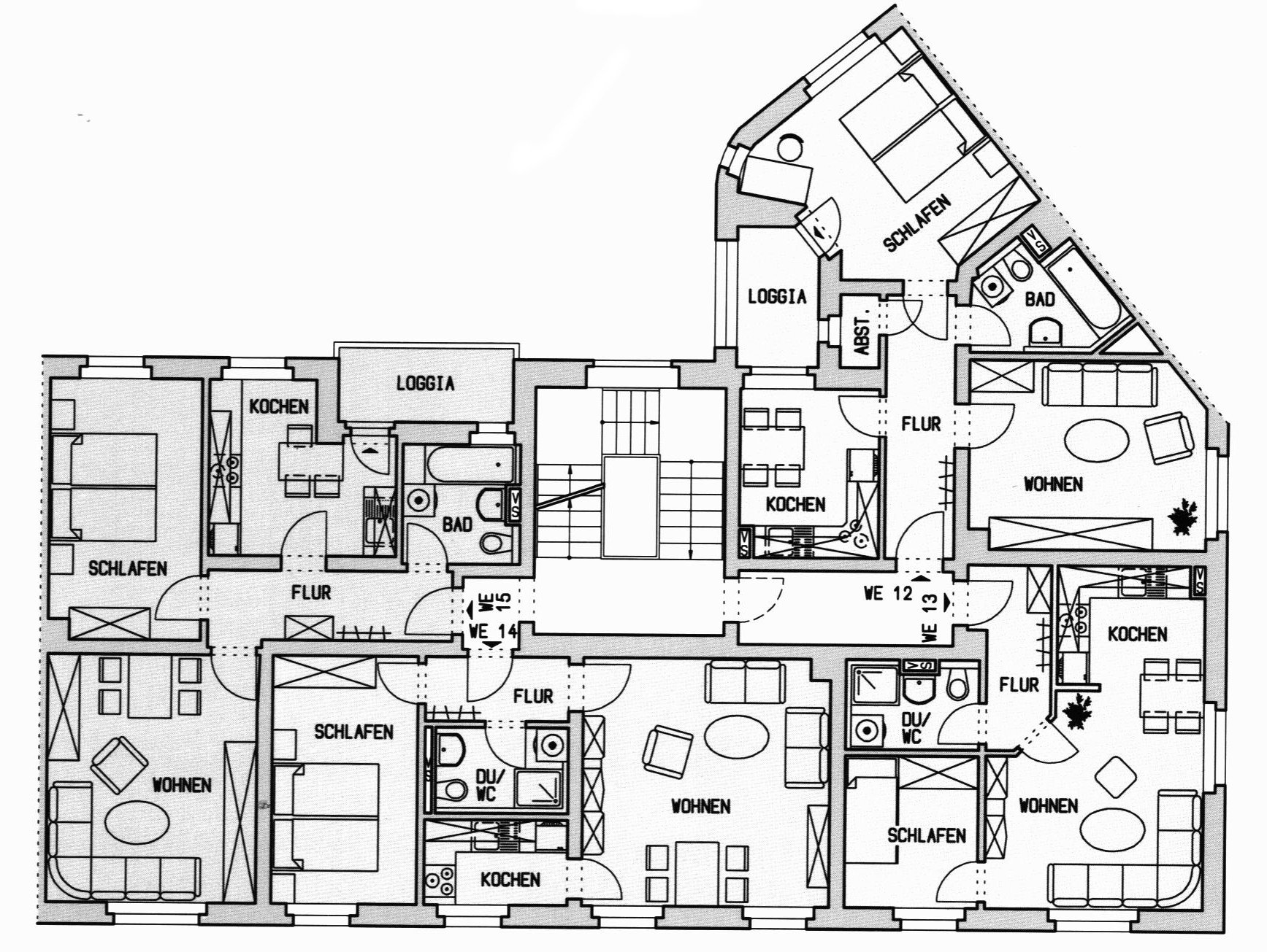
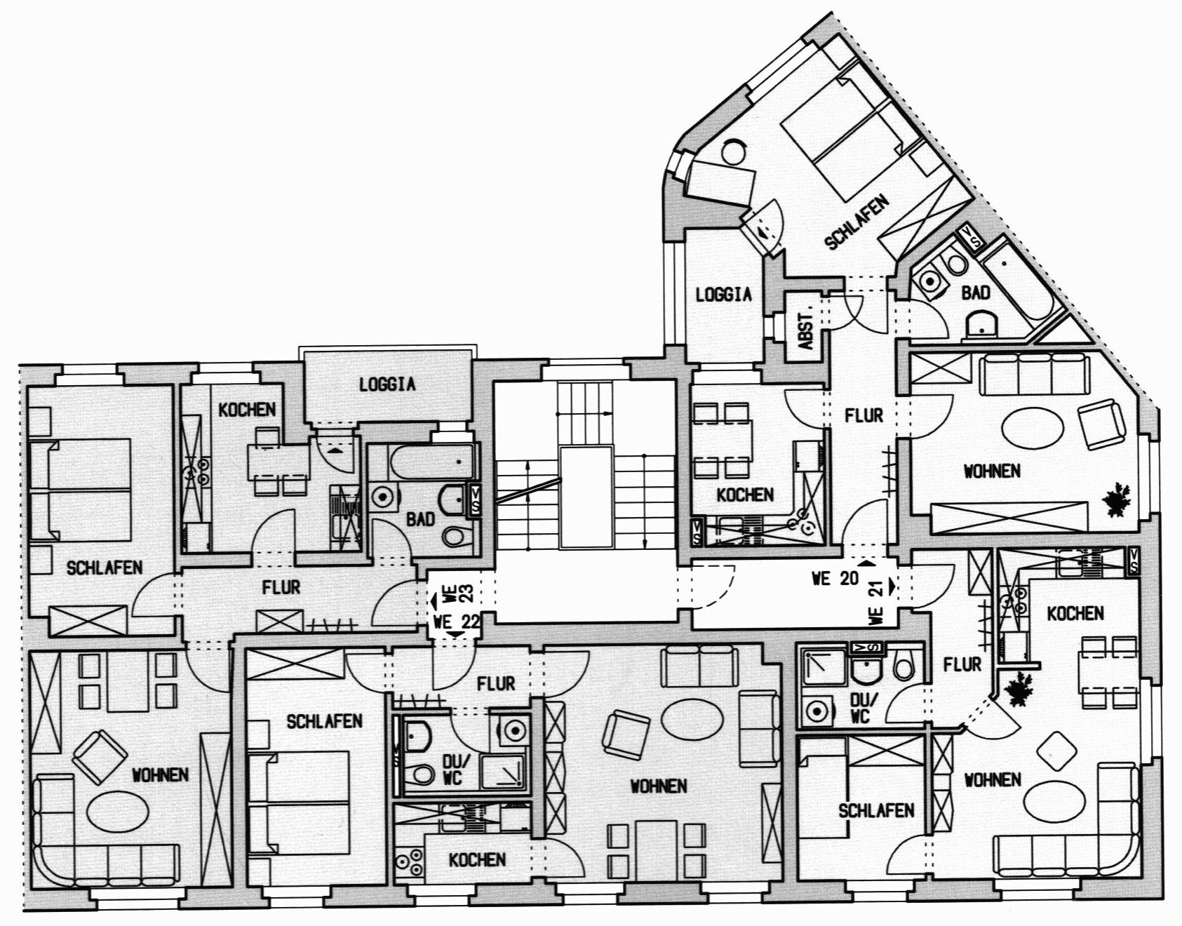
Um sich den Grundriss der jeweiligen Wohnung
anzeigen zu lassen, klicken Sie bitte einfach auf die kleine Grafik rechts in
der Tabelle. Da in den Grundrissen immer eine ganze Etage dargestellt ist,
orientieren Sie sich am besten an der Wohneinheiten-Nummer ( WE-Nr.)
Wenn Sie Grundrisse ausdrucken mφchten, so
empfehlen wir, diese erst zu downloaden und dann mit Hilfe der
Windows-Druckfunktion oder eines geeigneten Grafik-Programms auszudrucken.
|
WE-Nr. |
Etage |
Ausstattung |
m² |
K-Miete |
N-Kosten |
W-Miete |
Grundrisse |
Bemerkung |
|
EP |
GP |
EP |
GP |
|
Haus Nr. 56 |
|
1 |
EG |
1-Loggia-Du
PKW-Stellplatz |
35,80 |
5,30 |
189,74 |
2,00 |
71,60 |
261,34 |
 |
vermietet |
|
2 |
EG |
3-BLK-Bad |
65,30 |
5,30 |
346,09 |
2,00 |
130,60 |
476,69 |
vermietet |
|
3 |
1. OG |
3-BLK-Bad |
67,00 |
5,30 |
355,10 |
2,00 |
134,00 |
489,10 |
 |
vermietet |
|
4 |
1. OG |
3-BLK-Bad |
67,00 |
5,30 |
355,10 |
2,00 |
134,00 |
489,10 |
vermietet |
|
5 |
2. OG |
3-BLK-Bad |
67,40 |
5,30 |
357,22 |
2,00 |
134,80 |
492,02 |
 |
vermietet |
|
6 |
2. OG |
3-BLK-Bad |
67,00 |
5,30 |
355,10 |
2,00 |
134,00 |
489,10 |
vermietet |
|
7 |
3. OG |
3-BLK-Bad |
67,40 |
5,30 |
357,22 |
2,00 |
134,80 |
492,02 |
 |
vermietet |
|
8 |
3. OG |
3-BLK-Bad |
67,00 |
5,30 |
355,10 |
2,00 |
134,00 |
489,10 |
vermietet |
|
Haus Nr. 58 |
|
9 |
EG |
2-Loggia-Bad-ASK |
51,40 |
5,30 |
272,42 |
2,00 |
102,80 |
375,22 |
 |
vermietet |
|
10 |
EG |
1,5-Bad |
47,10 |
5,30 |
249,63 |
2,00 |
94,20 |
343,83 |
|
|
11 |
EG |
4-Loggia-Bad-Du-2xWT-2xWC |
79,30 |
5,30 |
420,29 |
2,00 |
158,60 |
578,89 |
vermietet |
|
12 |
1. OG |
2-Loggia-Bad-ASK |
52,50 |
5,30 |
278,25 |
2,00 |
105,00 |
383,25 |
 |
vermietet |
|
13 |
1. OG |
2-Du
PKW-Stellplatz |
37,10 |
5,30 |
196,63 |
2,00 |
74,20 |
270,83 |
vermietet |
|
14 |
1. OG |
2-Du
PKW-Stellplatz |
46,30 |
5,30 |
245,39 |
2,00 |
92,60 |
337,99 |
|
|
15 |
1. OG |
2-Loggia-Bad |
55,20 |
5,30 |
292,56 |
2,00 |
110,40 |
402,96 |
vermietet |
|
16 |
2. OG |
2-Loggia-Bad-ASK |
52,50 |
5,30 |
278,25 |
2,00 |
105,00 |
383,25 |
 |
vermietet |
|
17 |
2. OG |
2-Du
PKW-Stellplatz |
37,10 |
5,30 |
196,63 |
2,00 |
74,20 |
270,83 |
vermietet |
|
18 |
2. OG |
2-Du
PKW-Stellplatz |
46,30 |
5,30 |
245,39 |
2,00 |
92,60 |
337,99 |
vermietet |
|
19 |
2. OG |
2-Loggia-Bad |
55,20 |
5,30 |
292,56 |
2,00 |
110,40 |
402,96 |
vermietet |
|
20 |
3. OG |
2-Loggia-Bad-ASK |
52,50 |
5,30 |
278,25 |
2,00 |
105,00 |
383,25 |
 |
vermietet |
|
21 |
3. OG |
2-Du
PKW-Stellplatz |
37,10 |
5,30 |
196,63 |
2,00 |
74,20 |
270,83 |
vermietet |
|
22 |
3. OG |
2-Du
PKW-Stellplatz |
46,30 |
5,30 |
245,39 |
2,00 |
92,60 |
337,99 |
vermietet |
|
23 |
3. OG |
2-Loggia-Bad |
55,20 |
5,30 |
292,56 |
2,00 |
110,40 |
402,96 |
vermietet |
Zu jeder Wohneinheit gehφrt ein Kellerraum. Der
Dachboden ist zum Trockenraum ausgebaut.
Die Gebόhr fόr den PKW-Stellplatz betrδgt 15,00 Euro pro Monat.