Mockauer Straίe 74 / 76 und Gontardweg 137 in Leipzig, Anger-Crottendorf
Standort
Lage des Flurstόcks
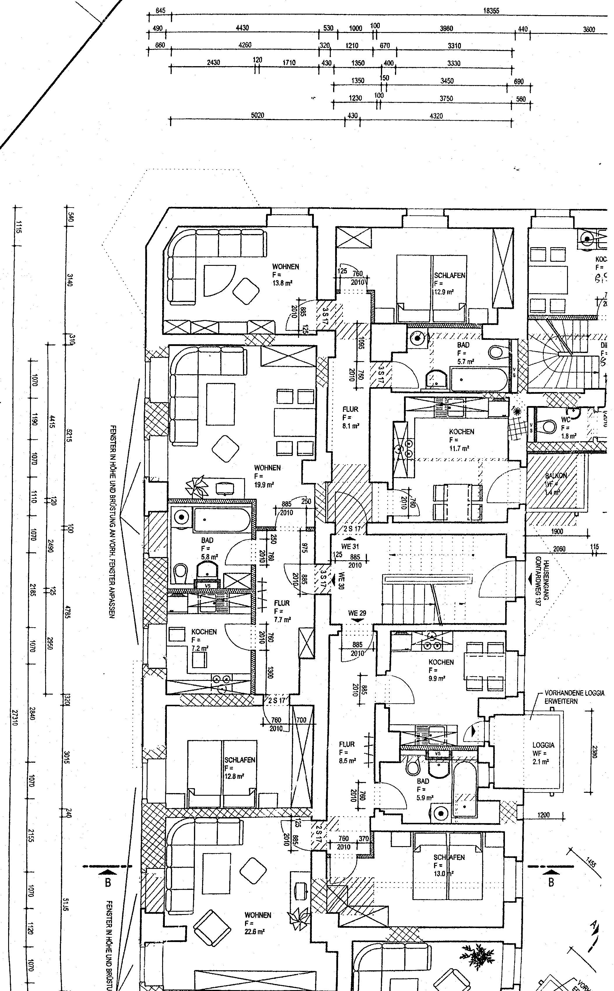
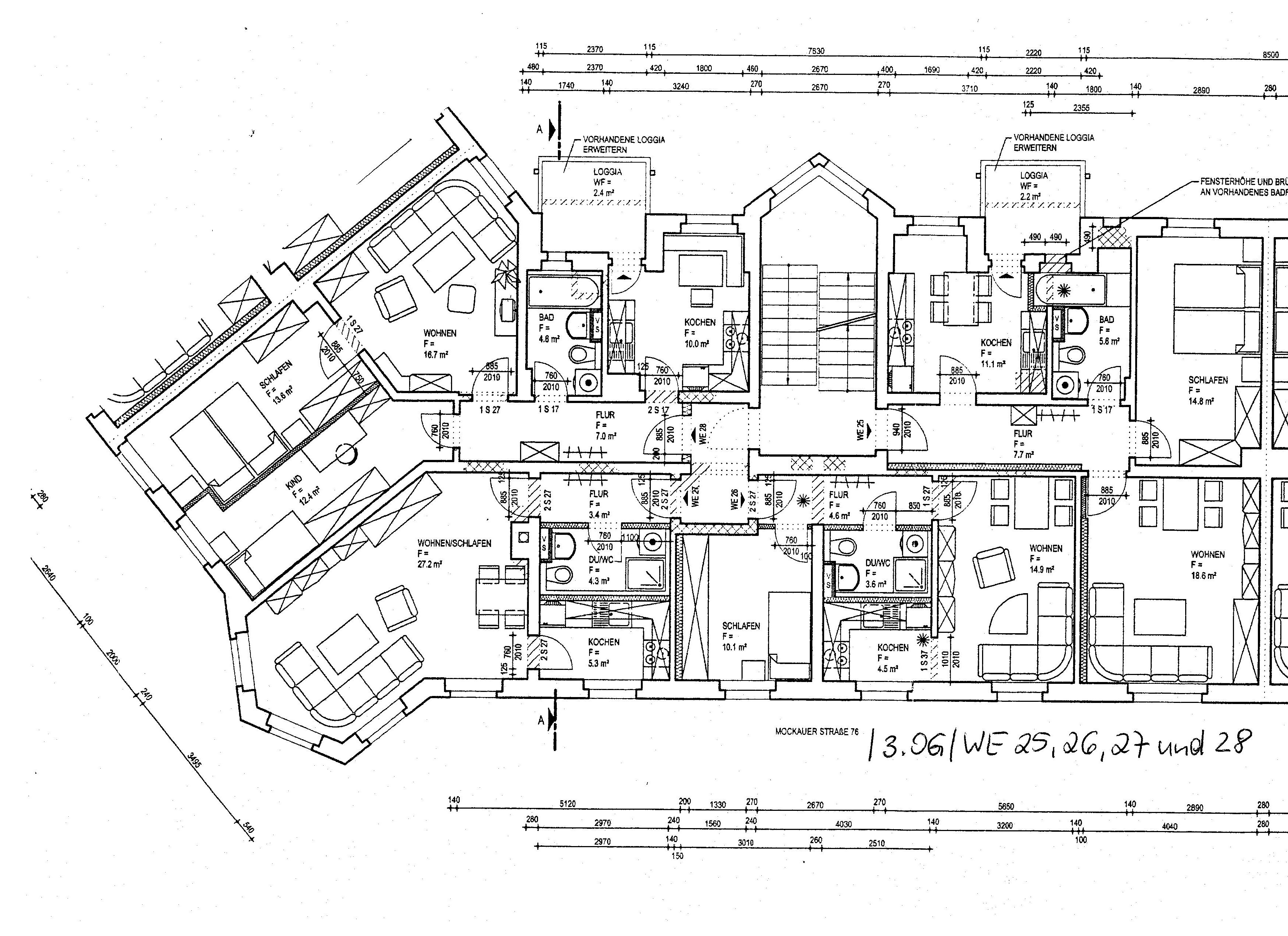
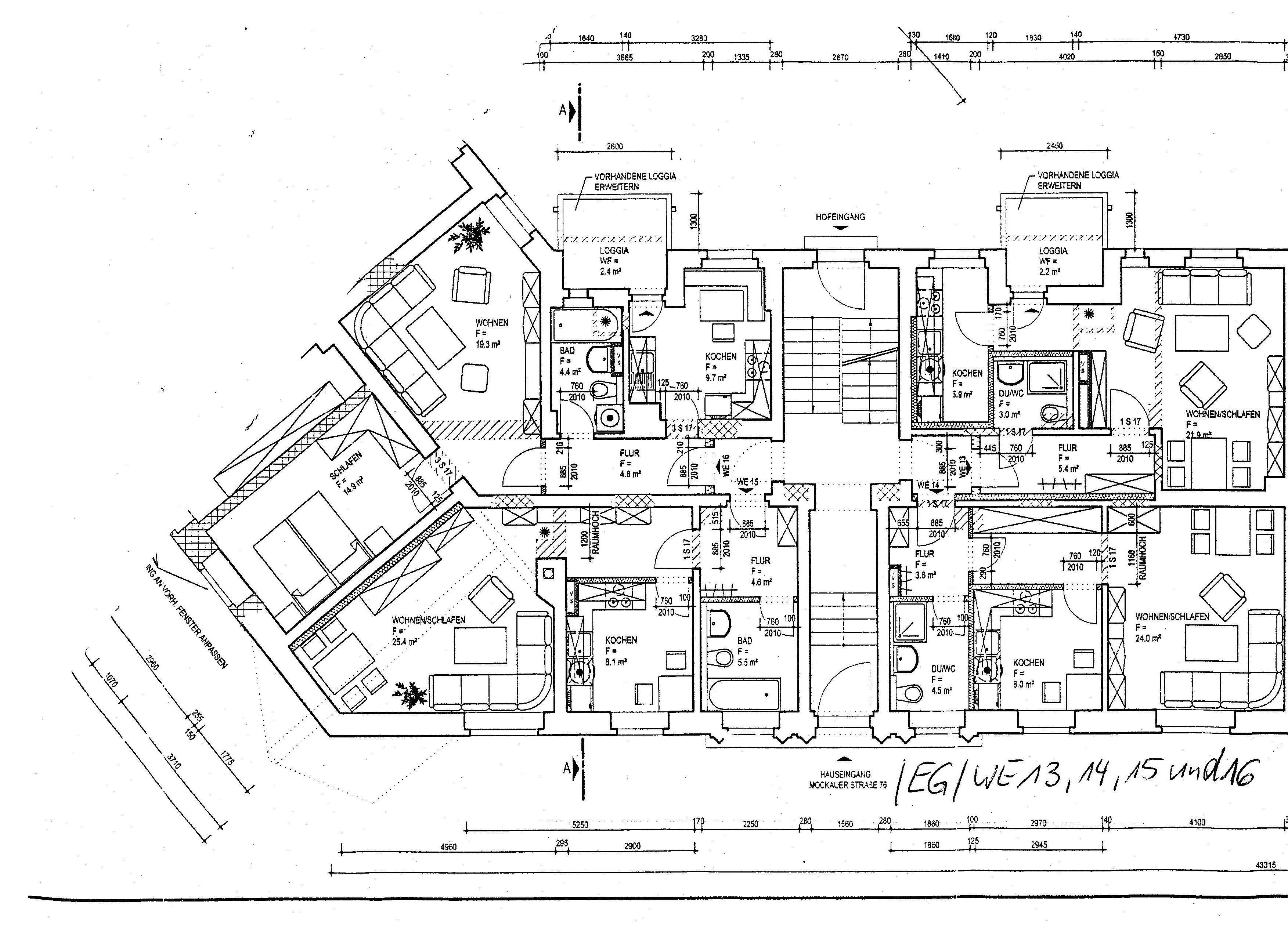
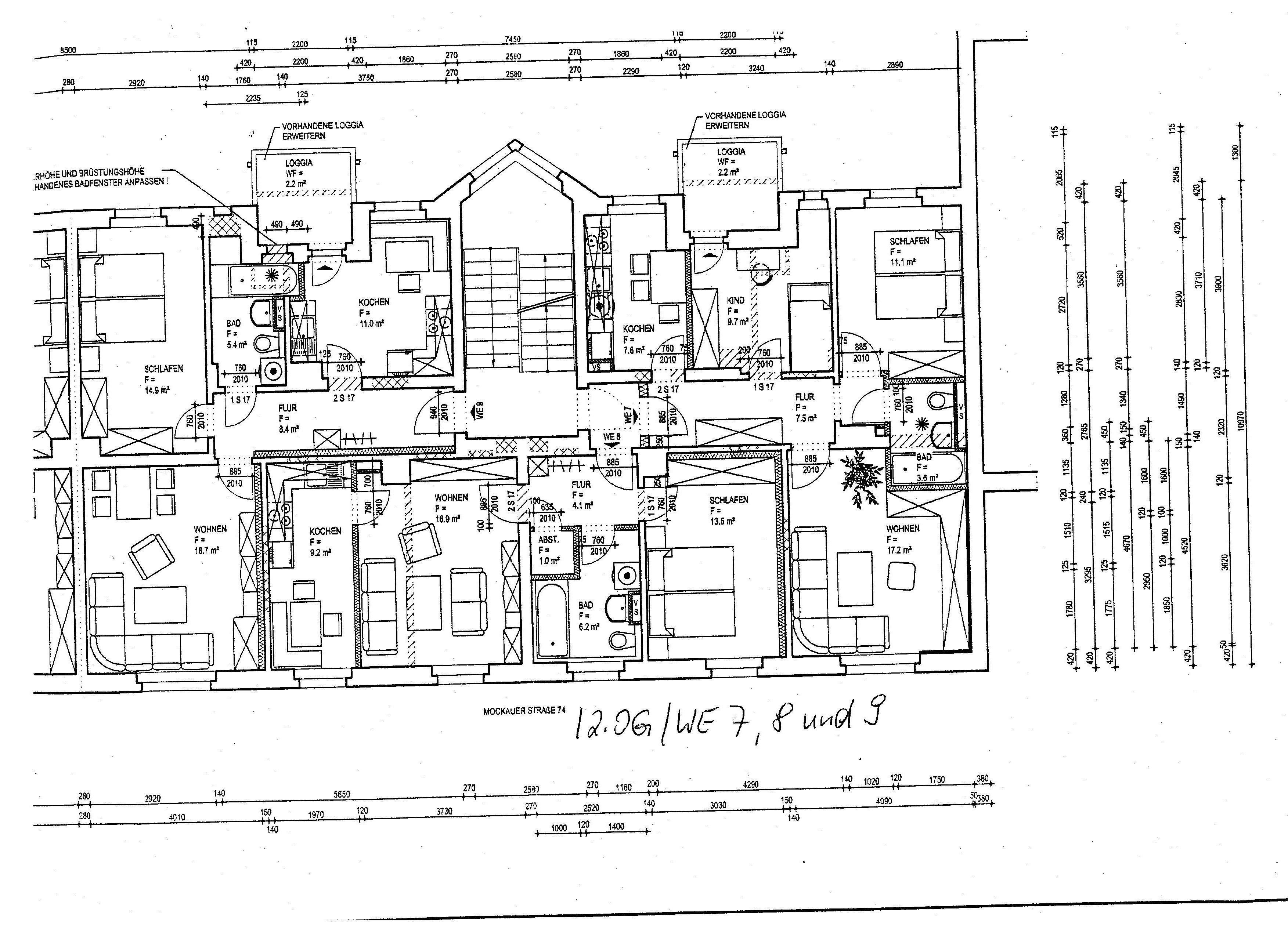
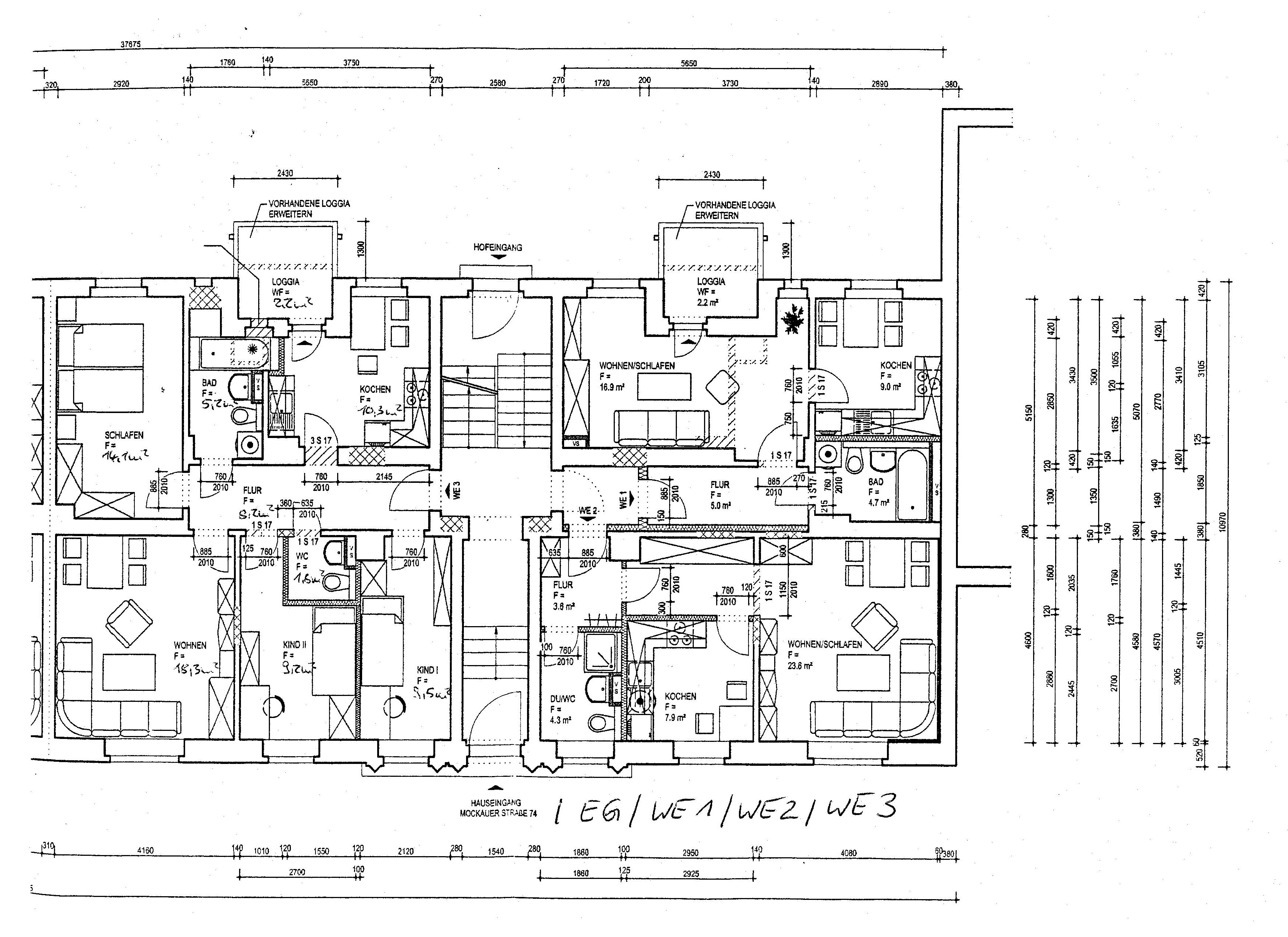
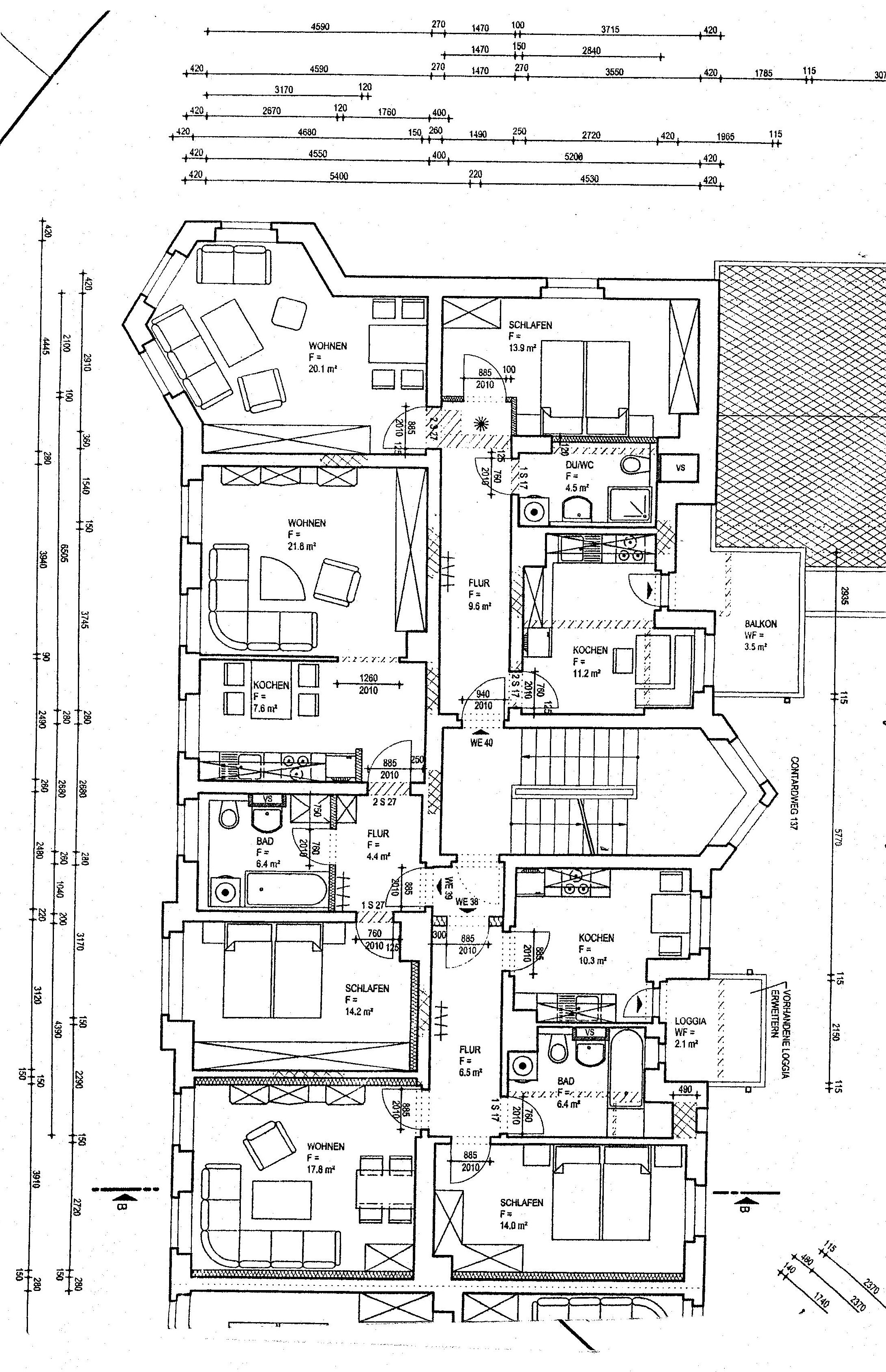
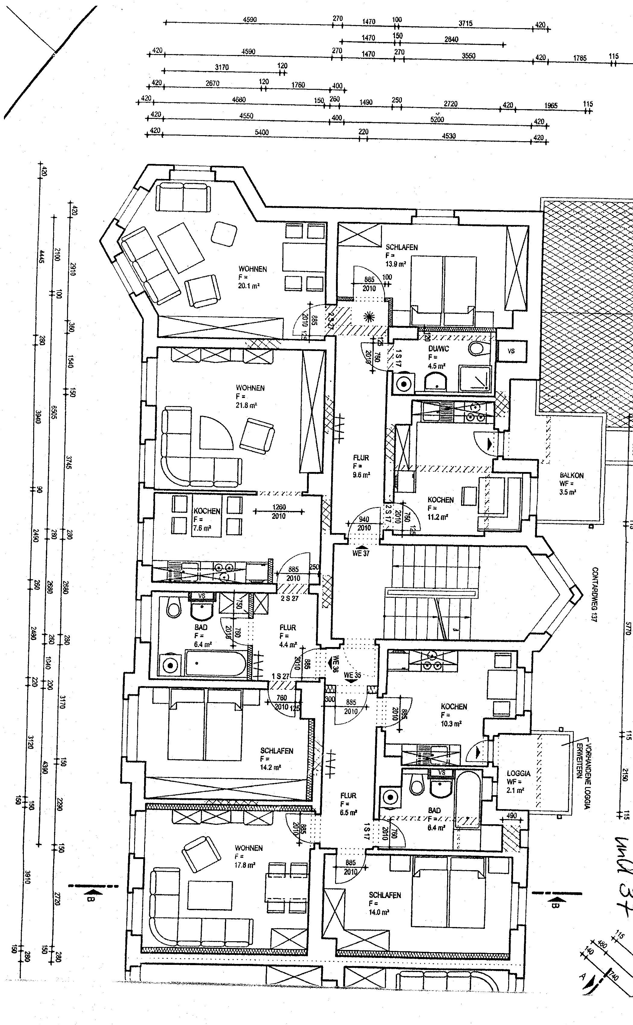
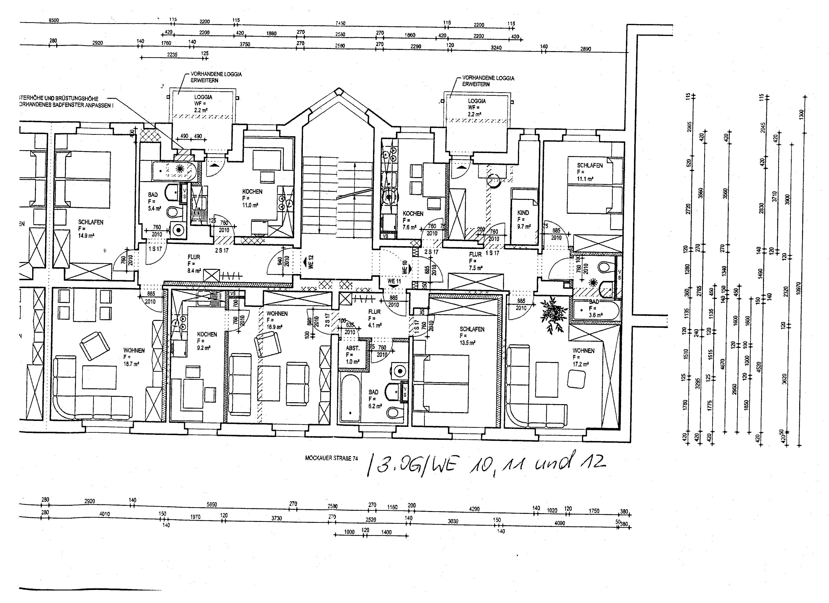
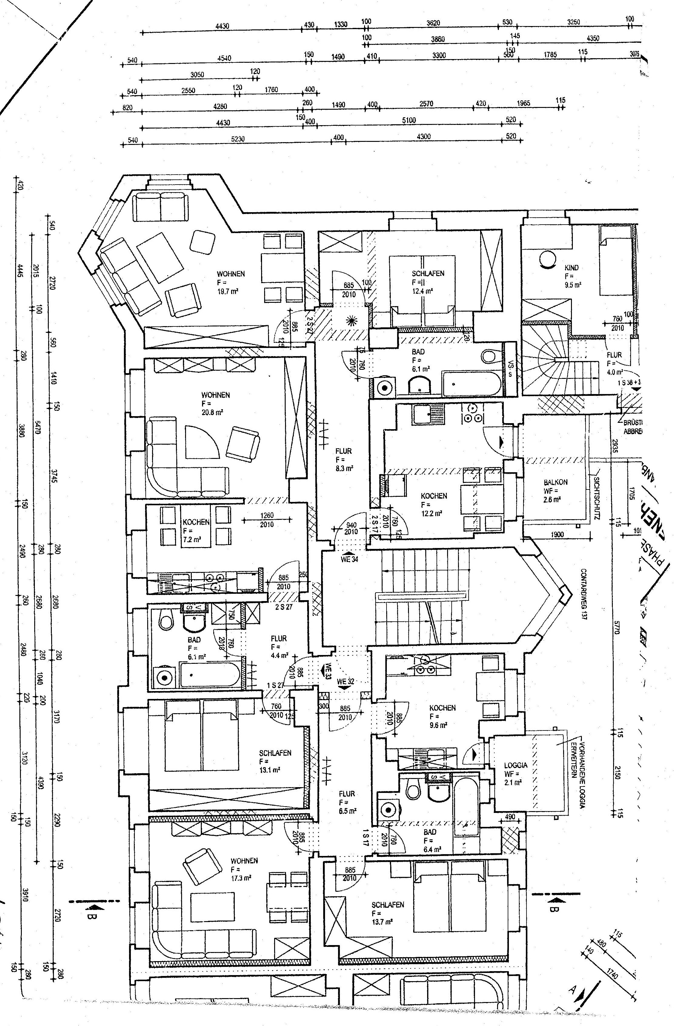
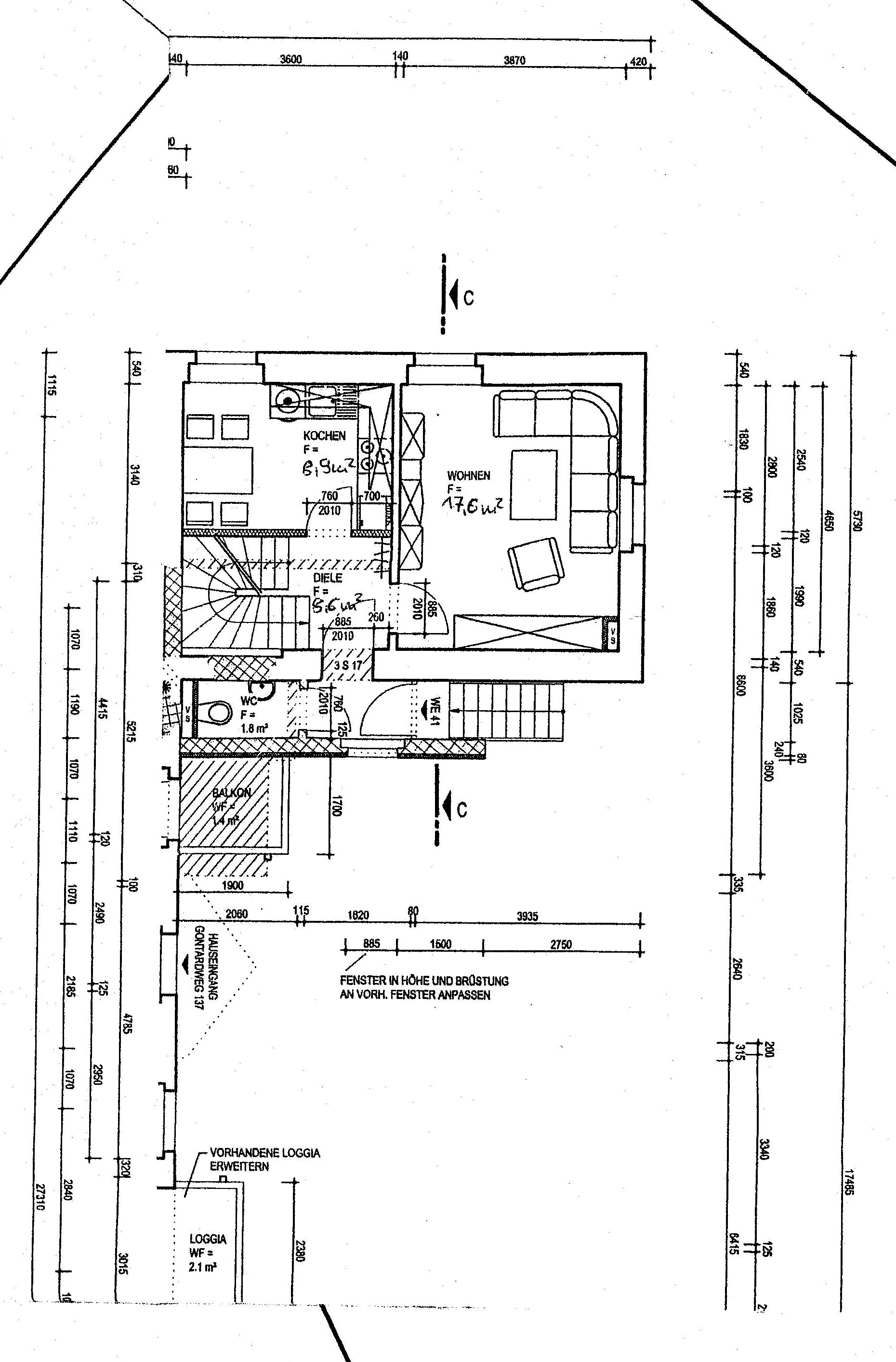
Um sich den Grundriss der jeweiligen Wohnung
anzeigen zu lassen, klicken Sie bitte einfach auf die kleine Grafik rechts in
der Tabelle. Da in den Grundrissen immer eine ganze Etage dargestellt ist,
orientieren Sie sich am besten an der Wohneinheiten-Nummer ( WE-Nr.)
Wenn Sie Grundrisse ausdrucken mφchten, so
empfehlen wir, diese erst zu downloaden und dann mit Hilfe der
Windows-Druckfunktion oder eines geeigneten Grafik-Programms auszudrucken.
|
WE-Nr. |
Etage |
Ausstattung |
m² |
K-Miete |
N-Kosten |
W-Miete |
Grundrisse |
Bemerkung |
|
EP |
GP |
EP |
GP |
|
Mockauer Straίe 74 |
|
1 |
EG |
1-Loggia-Bad |
37,80 |
5,30 |
200,34 |
2,00 |
75,60 |
275,94 |
 |
|
|
2 |
EG |
1-Du |
39,40 |
5,30 |
208,82 |
2,00 |
78,80 |
287,62 |
|
|
3 |
EG |
4-Loggia-Bad-2xWT-2xWC |
78,80 |
5,30 |
417,64 |
2,00 |
157,60 |
575,24 |
|
|
4 |
1. OG |
3-Loggia-Bad |
59,40 |
5,30 |
314,82 |
2,00 |
118,80 |
433,62 |
 |
|
|
5 |
1. OG |
2-Bad |
50,70 |
5,30 |
268,71 |
2,00 |
101,40 |
370,11 |
|
|
6 |
1. OG |
2-Loggia-Bad |
60,60 |
5,30 |
321,18 |
2,00 |
121,20 |
442,38 |
|
|
7 |
2. OG |
3-Loggia-Bad |
58,90 |
5,30 |
312,17 |
2,00 |
117,80 |
429,97 |
 |
|
|
8 |
2. OG |
2-Bad |
50,90 |
5,30 |
269,77 |
2,00 |
101,80 |
371,57 |
|
|
9 |
2. OG |
2-Loggia-Bad |
60,60 |
5,30 |
321,18 |
2,00 |
121,20 |
442,38 |
vermietet |
|
10 |
3. OG |
3-Loggia-Bad |
58,90 |
5,30 |
312,17 |
2,00 |
117,80 |
429,97 |
 |
|
|
11 |
3. OG |
2-Bad |
50,90 |
5,30 |
269,77 |
2,00 |
101,80 |
371,57 |
|
|
12 |
3. OG |
2-Loggia-Bad |
60,60 |
5,30 |
321,18 |
2,00 |
121,20 |
442,38 |
|
|
Mockauer Straίe 76 |
|
13 |
EG |
1-Loggia-Du |
38,40 |
5,30 |
203,52 |
2,00 |
76,80 |
280,32 |
 |
vermietet |
|
14 |
EG |
1-Du |
40,10 |
5,30 |
212,53 |
2,00 |
80,20 |
292,73 |
|
|
15 |
EG |
1-Bad |
43,60 |
5,30 |
231,08 |
2,00 |
87,20 |
318,28 |
|
|
16 |
EG |
2-Loggia-Bad |
55,50 |
5,30 |
294,15 |
2,00 |
111,00 |
405,15 |
|
|
17 |
1. OG |
2-Loggia-Bad |
59,60 |
5,30 |
315,88 |
2,00 |
119,20 |
435,08 |
 |
|
|
18 |
1. OG |
2-Du |
37,70 |
5,30 |
199,81 |
2,00 |
75,40 |
275,21 |
vermietet |
|
19 |
1. OG |
1-Du |
39,00 |
5,30 |
206,70 |
2,00 |
78,00 |
284,70 |
vermietet |
|
20 |
1. OG |
3-Loggia-Bad |
65,20 |
5,30 |
345,56 |
2,00 |
130,40 |
475,96 |
|
|
21 |
2. OG |
2-Loggia-Bad |
60,00 |
5,30 |
318,00 |
2,00 |
120,00 |
438,00 |
 |
|
|
22 |
2. OG |
2-Du |
37,70 |
5,30 |
199,81 |
2,00 |
75,40 |
275,21 |
vermietet |
|
23 |
2. OG |
1-Du |
40,20 |
5,30 |
213,06 |
2,00 |
80,40 |
293,46 |
|
|
24 |
2. OG |
3-Loggia-Bad |
66,70 |
5,30 |
353,51 |
2,00 |
133,40 |
486,91 |
|
|
25 |
3. OG |
2-Loggia-Bad |
60,00 |
5,30 |
318,00 |
2,00 |
120,00 |
438,00 |
|
|
|
26 |
3. OG |
2-Du |
37,70 |
5,30 |
199,81 |
2,00 |
75,40 |
275,21 |
vermietet |
|
27 |
3. OG |
1-Du |
40,20 |
5,30 |
213,06 |
2,00 |
80,40 |
293,46 |
|
|
28 |
3. OG |
3-Loggia-Bad |
66,70 |
5,30 |
353,51 |
2,00 |
133,40 |
486,91 |
|
|
Gontardweg 137 |
|
29 |
EG |
2-Loggia-Bad |
62,00 |
5,30 |
328,60 |
2,00 |
124,00 |
452,60 |
 |
|
|
30 |
EG |
2-Bad |
53,40 |
5,30 |
283,02 |
2,00 |
106,80 |
389,82 |
|
|
31 |
EG |
2-BLK-Bad |
53,60 |
5,30 |
284,08 |
2,00 |
107,20 |
391,28 |
|
|
32 |
1. OG |
2-Loggia-Bad |
55,60 |
5,30 |
294,68 |
2,00 |
111,20 |
405,88 |
 |
|
|
33 |
1. OG |
2-Bad |
51,60 |
5,30 |
273,48 |
2,00 |
103,20 |
376,68 |
|
|
34 |
1. OG |
2-BLK-Bad |
61,30 |
5,30 |
324,89 |
2,00 |
122,60 |
447,49 |
|
|
35 |
2. OG |
2-Loggia-Bad |
57,10 |
5,30 |
302,63 |
2,00 |
114,20 |
416,83 |
 |
|
|
36 |
2. OG |
2-Bad |
54,40 |
5,30 |
288,32 |
2,00 |
108,80 |
397,12 |
|
|
37 |
2. OG |
2-BLK-Bad |
62,80 |
5,30 |
332,84 |
2,00 |
125,60 |
458,44 |
|
|
38 |
3. OG |
2-Loggia-Bad |
57,10 |
5,30 |
302,63 |
2,00 |
114,20 |
416,83 |
 |
|
|
39 |
3. OG |
2-Bad |
54,40 |
5,30 |
288,32 |
2,00 |
108,80 |
397,12 |
|
|
40 |
3. OG |
2-BLK-Bad |
62,80 |
5,30 |
332,84 |
2,00 |
125,60 |
458,44 |
|
|
41 |
EG / 1. OG |
3-BLK-Bad-2xWT-2xWC |
68,50 |
5,30 |
363,05 |
2,00 |
137,00 |
500,05 |

 |
vermietet |
Zu jeder Wohneinheit gehφrt ein Kellerraum. Der
Dachboden ist zum Trockenraum ausgebaut.