Taubestraίe 19 / 21 in Leipzig Schφnfeld
Standort
Lage des Flurstόcks
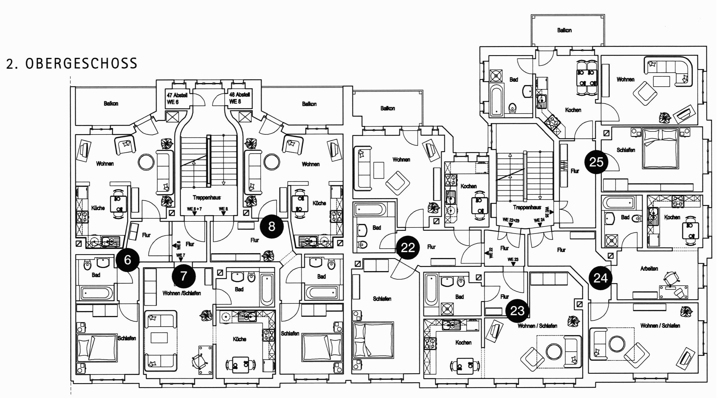
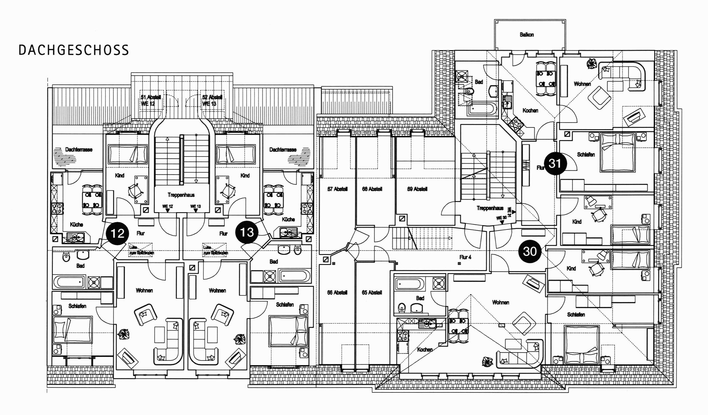
Um sich den Grundriss der jeweiligen Wohnung
anzeigen zu lassen, klicken Sie bitte einfach auf die kleine Grafik rechts in
der Tabelle. Da in den Grundrissen immer eine ganze Etage dargestellt ist,
orientieren Sie sich am besten an der Wohneinheiten-Nummer ( WE-Nr.)
Wenn Sie Grundrisse ausdrucken mφchten, so
empfehlen wir, diese erst zu downloaden und dann mit Hilfe der
Windows-Druckfunktion oder eines geeigneten Grafik-Programms auszudrucken.
|
WE-Nr. |
Etage |
Ausstattung |
m² |
K-Miete |
N-Kosten |
W-Miete |
Grundrisse |
Bemerkung |
|
EP |
GP |
EP |
GP |
|
Haus Nr. 19 |
|
1 |
EG |
2-BLK-Bad-ASK |
56,83 |
5,30 |
301,20 |
2,00 |
113,66 |
414,86 |
 |
vermietet |
|
2 |
EG |
3-BLK-Bad-ASK |
65,32 |
5,30 |
346,20 |
2,00 |
130,64 |
476,84 |
|
|
3 |
1. OG |
2-BLK-Bad-ASK
PKW-Stellplatz |
47,41 |
5,30 |
251,27 |
2,00 |
94,82 |
346,09 |
 |
vermietet |
|
4 |
1. OG |
1-Bad
PKW-Stellplatz |
31,58 |
5,30 |
167,37 |
2,00 |
63,16 |
230,53 |
vermietet |
|
5 |
1. OG |
2-BLK-Bad-ASK
PKW-Stellplatz |
51,43 |
5,30 |
272,58 |
2,00 |
102,86 |
375,44 |
|
|
6 |
2. OG |
2-BLK-Bad-ASK
PKW-Stellplatz |
48,44 |
5,30 |
256,73 |
2,00 |
96,88 |
353,61 |
 |
vermietet |
|
7 |
2. OG |
1-Bad
PKW-Stellplatz |
33,19 |
5,30 |
175,91 |
2,00 |
66,38 |
242,29 |
vermietet |
|
8 |
2. OG |
2-BLK-Bad-ASK
PKW-Stellplatz |
52,50 |
5,30 |
278,25 |
2,00 |
105,00 |
383,25 |
vermietet |
|
9 |
3. OG |
2-BLK-Bad-ASK
PKW-Stellplatz |
48,44 |
5,30 |
256,73 |
2,00 |
96,88 |
353,61 |
 |
vermietet |
|
10 |
3. OG |
1-Bad
PKW-Stellplatz |
33,19 |
5,30 |
175,91 |
2,00 |
66,38 |
242,29 |
vermietet |
|
11 |
3. OG |
2-BLK-Bad-ASK
PKW-Stellplatz |
52,50 |
5,30 |
278,25 |
2,00 |
105,00 |
383,25 |
|
|
12 |
DG |
3-Terr-Bad-ASK |
61,45 |
5,30 |
325,69 |
2,00 |
122,90 |
448,59 |
 |
vermietet |
|
13 |
DG |
3-Terr-Bad-ASK |
60,66 |
5,30 |
321,50 |
2,00 |
121,32 |
442,82 |
vermietet |
|
Haus Nr. 21 |
|
14 |
EG |
1-Gewerbe |
13,30 |
5,30 |
70,49 |
2,00 |
26,60 |
97,09 |
 |
vermietet |
|
15 |
EG |
2-BLK-Bad |
54,69 |
5,30 |
289,86 |
2,00 |
109,38 |
399,24 |
vermietet |
|
16 |
EG |
1-Bad
PKW-Stellplatz |
43,83 |
5,30 |
232,30 |
2,00 |
87,66 |
319,96 |
vermietet |
|
17 |
EG |
3-BLK-Bad |
68,89 |
5,30 |
365,12 |
2,00 |
137,78 |
502,90 |
vermietet |
|
18 |
1. OG |
2-BLK-Bad
PKW-Stellplatz |
54,42 |
5,30 |
288,43 |
2,00 |
108,84 |
397,27 |
 |
vermietet |
|
19 |
1. OG |
1-Bad
PKW-Stellplatz |
36,06 |
5,30 |
191,12 |
2,00 |
72,12 |
263,24 |
vermietet |
|
20 |
1. OG |
1,5-Bad
PKW-Stellplatz |
45,85 |
5,30 |
243,01 |
2,00 |
91,70 |
334,71 |
vermietet |
|
21 |
1. OG |
2-BLK-Bad |
56,57 |
5,30 |
299,82 |
2,00 |
113,14 |
412,96 |
vermietet |
|
22 |
2. OG |
2-BLK-Bad |
56,01 |
5,30 |
296,85 |
2,00 |
112,02 |
408,87 |
|
vermietet |
|
23 |
2. OG |
1-Bad
PKW-Stellplatz |
38,07 |
5,30 |
201,77 |
2,00 |
76,14 |
277,91 |
vermietet |
|
24 |
2. OG |
1,5-Bad
PKW-Stellplatz |
48,34 |
5,30 |
256,20 |
2,00 |
96,68 |
352,88 |
|
|
25 |
2. OG |
2-BLK-Bad |
59,70 |
5,30 |
316,41 |
2,00 |
119,40 |
435,81 |
vermietet |
|
26 |
3. OG |
2-BLK-Bad |
56,01 |
5,30 |
296,85 |
2,00 |
112,02 |
408,87 |
|
vermietet |
|
27 |
3. OG |
1-Bad
PKW-Stellplatz |
38,07 |
5,30 |
201,77 |
2,00 |
76,14 |
277,91 |
vermietet |
|
28 |
3. OG |
1,5-Bad
PKW-Stellplatz |
48,34 |
5,30 |
256,20 |
2,00 |
96,68 |
352,88 |
|
|
29 |
3. OG |
2-BLK-Bad |
59,70 |
5,30 |
316,41 |
2,00 |
119,40 |
435,81 |
vermietet |
|
30 |
DG |
3-Bad |
67,66 |
5,30 |
358,60 |
2,00 |
135,32 |
493,92 |
 |
|
|
31 |
DG |
3-BLK-Bad |
66,79 |
5,30 |
353,99 |
2,00 |
133,58 |
487,57 |
vermietet |
Zu jeder Wohneinheit gehφrt ein Kellerraum. Der
Dachboden ist zum Trockenraum ausgebaut.
Die monatlichen Gebόhren fόr einen PKW-Stellplatz betragen 15,00 Euro.