Wichernstraße 30 in Leipzig Anger-Crottendorf
Standort
Lage des Flurstücks
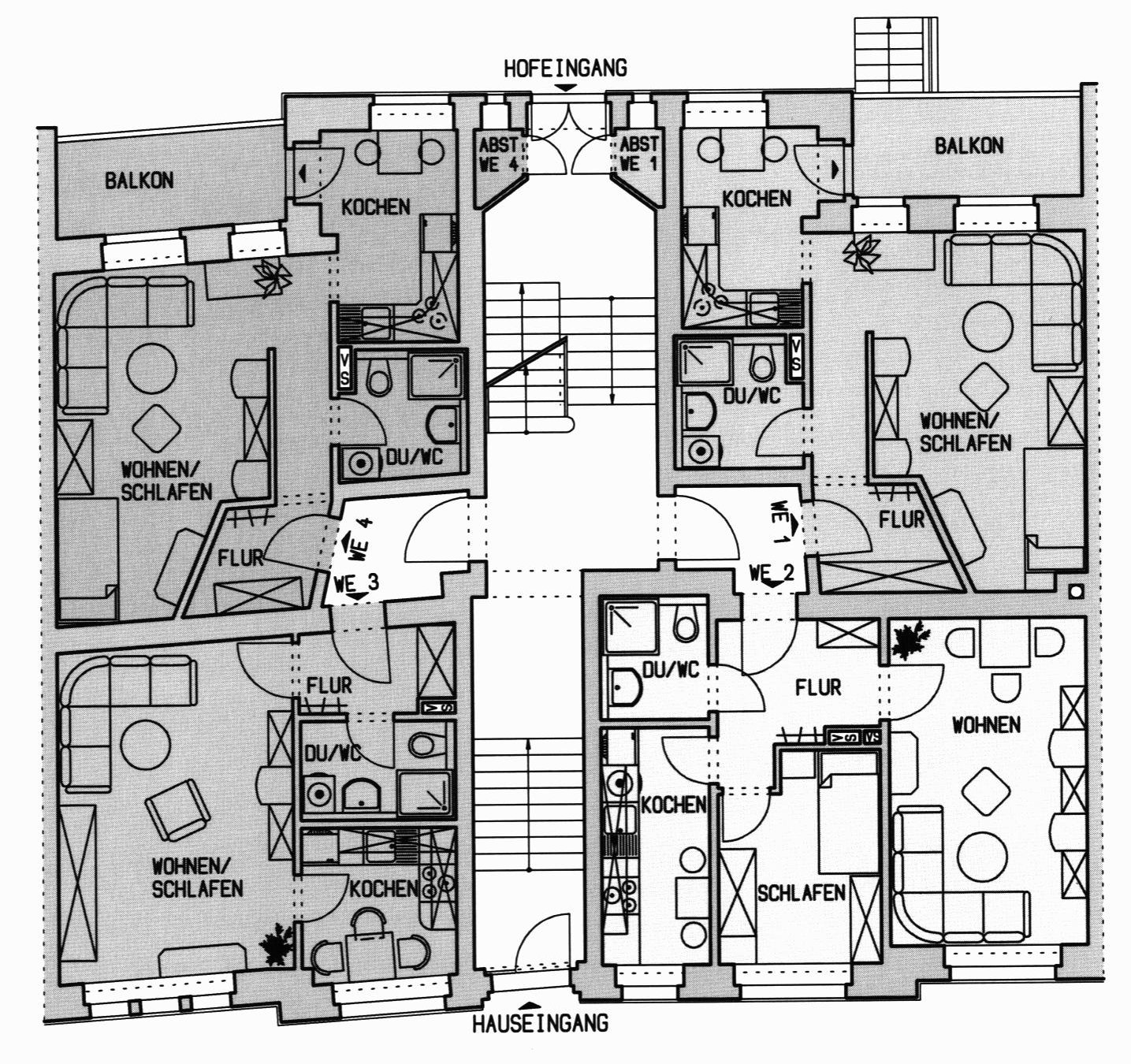
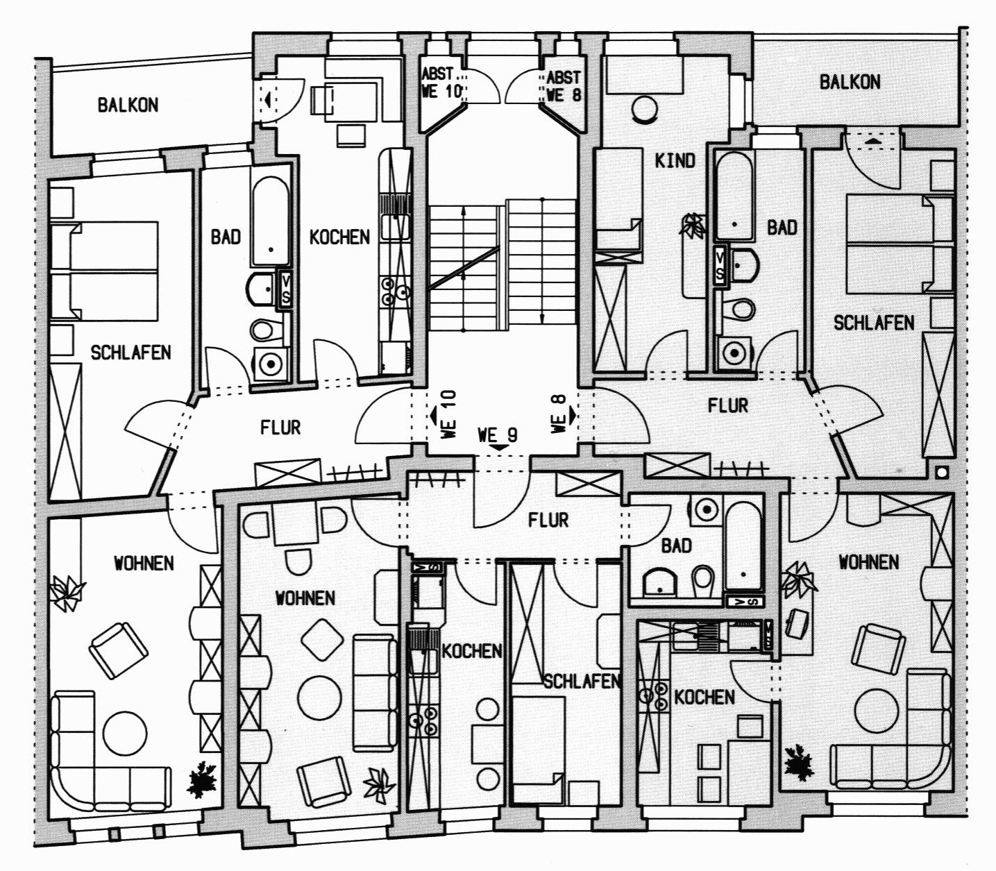
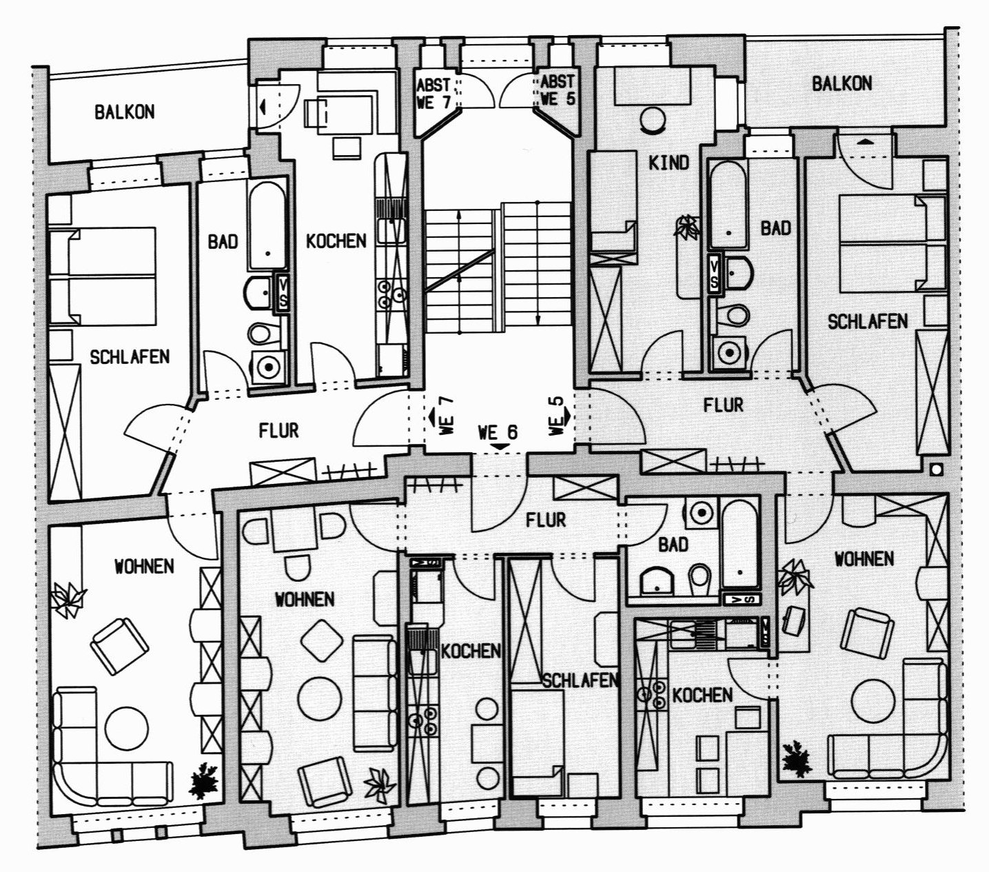
Um sich den Grundriss der jeweiligen Wohnung
anzeigen zu lassen, klicken Sie bitte einfach auf die kleine Grafik rechts in
der Tabelle. Da in den Grundrissen immer eine ganze Etage dargestellt ist,
orientieren Sie sich am besten an der Wohneinheiten-Nummer ( WE-Nr.)
Wenn Sie Grundrisse ausdrucken möchten, so
empfehlen wir, diese erst zu downloaden und dann mit Hilfe der
Windows-Druckfunktion oder eines geeigneten Grafik-Programms auszudrucken.
|
WE-Nr. |
Etage |
Ausstattung |
m² |
K-Miete |
N-Kosten |
W-Miete |
Grundriss |
Bemerkung |
|
EP |
GP |
EP |
GP |
|
1 |
EG |
1-BLK-Du-ASK |
38,60 |
5,50 € |
212,30 € |
2,00 € |
77,20 € |
289,50 € |
 |
vermietet |
|
2 |
EG |
2-Du |
41,00 |
5,50 € |
225,50 € |
2,00 € |
82,00 € |
307,50 € |
vermietet |
|
3 |
EG |
1-Du |
33,70 |
5,50 € |
185,35 € |
2,00 € |
67,40 € |
252,75 € |
vermietet |
|
4 |
EG |
1-BLK-Du-ASK |
38,40 |
5,50 € |
211,20 € |
2,00 € |
76,80 € |
288,00 € |
vermietet |
|
5 |
1. OG |
3-BLK-Bad-ASK |
67,50 |
5,50 € |
371,25 € |
2,00 € |
135,00 € |
506,25 € |
 |
vermietet |
|
6 |
1. OG |
2-Bad |
43,90 |
5,50 € |
241,45 € |
2,00 € |
87,80 € |
329,25 € |
vermietet |
|
7 |
1. OG |
2-BLK-Bad-ASK |
59,90 |
5,50 € |
329,45 € |
2,00 € |
119,80 € |
449,25 € |
|
|
8 |
2. OG |
3-BLK-Bad-ASK |
70,00 |
5,50 € |
385,00 € |
2,00 € |
140,00 € |
525,00 € |
 |
vermietet |
|
9 |
2. OG |
2-Bad |
45,30 |
5,50 € |
249,15 € |
2,00 € |
90,60 € |
339,75 € |
vermietet |
|
10 |
2. OG |
2-BLK-Bad-ASK |
62,10 |
5,50 € |
341,55 € |
2,00 € |
124,20 € |
465,75 € |
vermietet |
|
11 |
3. OG |
3-BLK-Bad-ASK |
70,00 |
5,50 € |
385,00 € |
2,00 € |
140,00 € |
525,00 € |
 |
vermietet |
|
12 |
3. OG |
2-Bad |
45,30 |
5,50 € |
249,15 € |
2,00 € |
90,60 € |
339,75 € |
vermietet |
|
13 |
3. OG |
2-BLK-Bad-ASK |
62,10 |
5,50 € |
341,55 € |
2,00 € |
124,20 € |
465,75 € |
|
Zu jeder Wohneinheit gehört ein Kellerraum. Der
Dachboden ist zum Trockenraum ausgebaut.